Highclere HAMPSHIRE

Price Guide £ 350,000

Key Features

● Rare Rural Building Plot
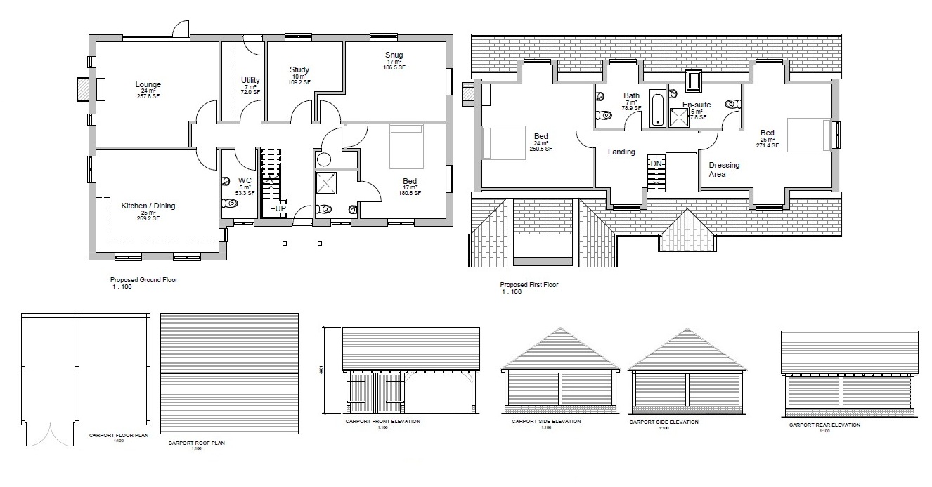
● Detailed Planning Permission for a Detached Three-Bedroom House, Approx. 2,100 sq ft
with a Detached Garage / Carport and Large Garden
● Optional Additional Land
● Highly Sought-After Location with Beautiful Country Views

The plot extends to approx. a quarter of an acre and there is an option to acquire further land by negotiation.

The property is situated in a highly desirable rural location to the south of Highclere village with wonderful views over neighbouring equestrian grazing paddocks. The surrounding area is extremely popular for dog walking, cycling and horse riding whilst Highclere is famous for its castle. 

There is a popular pub, the Highclere Red House, in the centre of the village with a thriving deli/fresh produce stall open on Tuesdays – Saturdays. Neighbouring Woolton Hill has a Post Office, convenience store, school and pub and wider ranges of shops and amenities can be found in Newbury and Andover. There's a wide choice of independent and state school locally, including St Thomas’ CE Infant’s, Woolton Hill Junior’s, Thorngrove, St Martin’s CE primary, Cheam, Brockhurst & Marlston, Elstree, St Andrew’s, Bradfield College, Downe House and Pangbourne College.

Residence

Detailed planning permission was granted by Basingstoke and Deane Borough Council on 02.12.2022 for the erection of a detached dwelling to include an entrance hall, cloakroom, utility room, study, snug, lounge, kitchen / dining room, two bedrooms with ensuites, third bedroom and family bathroom plus a detached garage / carport.  Concrete foundations for the garage / carport were completed in 2025 and recorded by Building Control as commencement of work on the site. 

SERVICES MAINS WATER & ELECTRICITY are all located close by but not currently connected. A private sewerage system will be required.

Land & Buildings

Location

Video Tour

EPC Graph

Book a Viewing

Contact Rural Scene
01264 850700
reception@ruralscene.co.uk
Please quote Ref: EO8635

Specialist Mortgage Advice

Testimonials

  • Dear Rural Scene family Well what can I say - we did it or rather you did! It's been a roller coaster of 3 years which I could write a book about. We knew from Abi's first visit and our contact with you all that we had chosen the right agents - you proved to be the best experience possible when going through this life changing major event. You were all so very professional, approachable and understanding. We really owe you a huge thank you for all your hard work and effort, and have to give a special thank you to Richard - he kept me busy with viewings, kept me positive when yet another buyer backed out and things looked grim and - he also kept me sane!! We are now happily settled in our new home and don't look back. It all worked out for the best in ...

    C & W (Lincolnshire)

  • I just wanted to say such a big thank you to all the team at Rural Scene for all the work you have done for us over the past few months. I’ve had so much confidence in your advice and everything you and the team have done. You have made it pretty much a stress free experience for us, and at just over 4 months from instruction to exchange, an amazing outcome. Thank you all so much.

    Mr B (Carmarthenshire)

  • Dear Edward Thank you, Richard and all the team for all the amazing help and support to get the sale over the line. Both yourself and Richard provided invaluable advice when we were making difficult decisions, we really appreciated it! And all the support through the super stressful patch earlier this week! We'll definitely recommend you to anyone selling a similar type of property.

    Mr H & Mrs C (Carmarthenshire)

  • Just a quick thank you to you and your company for the help we received from you all. Every conversation with staff members was pleasant and caring. We will definitely recommend Rural Scene to others.

    Mr & Mrs B (Gloucestershire)

  • To all the Team at Rural Scene. Thank you all for the excellent job in marketing, vetting and then sending us the right people in the right position. It's easy to send a high volume if viewers (nosy neighbours, day trippers, etc) But you guys piched it just right. We are now ready to fully move into our home in Louth and enjoy early retirement. Once again thank you.

    Mr & Mrs B (Lincolnshire)